Ramses Frederickx

Design & Interior

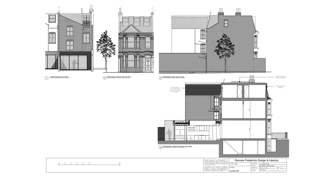
Fulham Loft Conversion

The practise recently completed a loft conversion in Parsons Green Fulham. We obtained planning permission to covert the original gabled roof into a mansard, with dormer windows and a Juliette balcony to the rear. Two children bedrooms and a bathroom were added to the property. An opening roolight was installed the bring daylight into the stairwell.